
Balance 300
Alles auf einen Blick
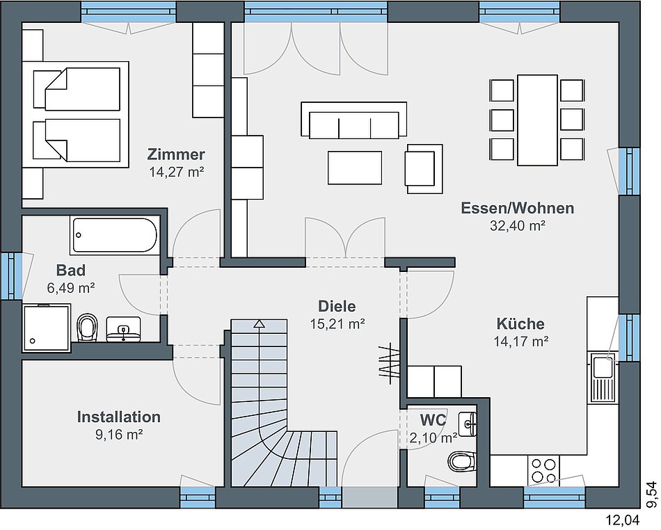
Außenmaße
9,54 x 12,04 m
Wohnfläche
159,79 m2
Architektur
1,5-geschossige Häuser
Baureihe
Balance — 300
Dachform
Satteldach
Mehr Informationen?
Extra groß - extra lebensfroh
Ihre Familie ist Ihr Ein und Alles. Ihr Nachwuchs hält Sie ganz schön auf Trab – und das ist auch gut so. Ein Zuhause voller Leben, davon haben Sie schon immer geträumt. Am besten eins, in dem jeder sein eigenes Reich hat. Zum Spielen, Toben oder einfach, um zwischendrin auch mal eine Auszeit nehmen zu können.
Mit einem großzügigen Platzangebot und vielfältigen Rückzugsmöglichkeiten schafft die 300-Variante von Balance beste Voraussetzungen für ein harmonisches Familienleben mit zwei oder mehr Kindern. Auf 158 Quadratmetern Wohnfläche können Sie jede Menge Freiräume und Ruhezonen für Groß und Klein gestalten.

