
Balance 300
Alles auf einen Blick
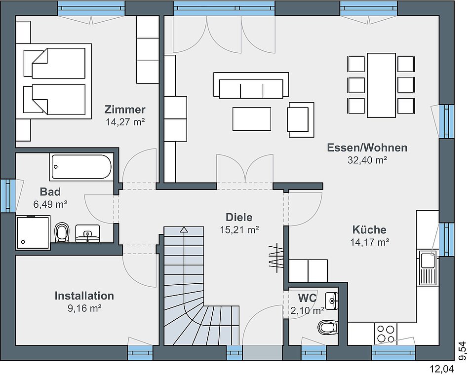
Außenmaße
9,54 x 12,04 m
Wohnfläche
159,79 m2
Architektur
1,5-geschossige Häuser
Baureihe
Balance — 300
Dachform
Satteldach
Mehr Informationen?
Optimal für zwei
Mit dem Auszug der Kinder beschloss das Ehepaar Herse, ihr Haus zu verkaufen und nach den neuen Bedürfnissen ein zweites Mal zu bauen. Entstanden ist ein klassisches Wohnhaus aus der Baureihe Balance. Das Satteldach ohne Kniestock ist mit schiefergrauen Betondachsteinen eingedeckt. In Kombination mit der weißen Putzfassade und den Fensterrahmen in Weiß kommt das anderthalb-geschossige Haus schlicht und zurückhaltend daher. Dank dem Rechteckerker auf der Südseite ist die Küche noch geräumiger. Vom Ess- und Wohnbereich gelangt man auf die Terrasse. Eine Pergola mit Dachverglasung schützt vor Regen.

