
Balance 355
Alles auf einen Blick
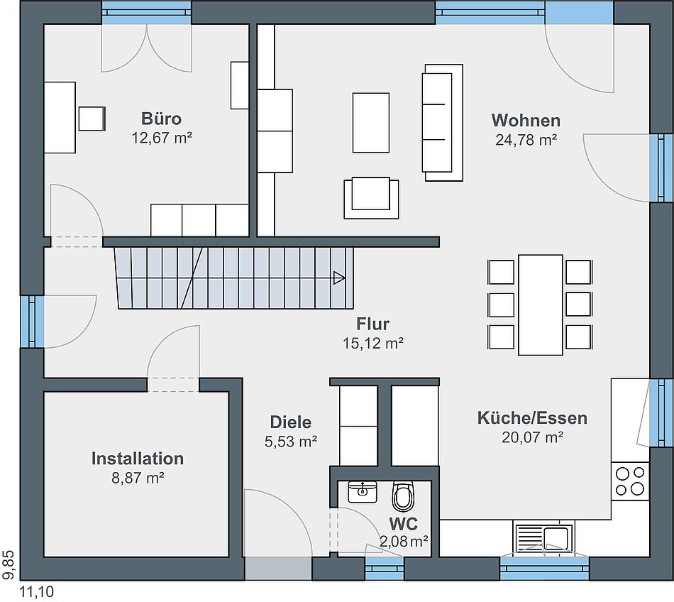
Außenmaße
9,85 x 11,10 m
Wohnfläche
159,67 m2
Architektur
1,5-geschossige Häuser
Baureihe
Balance — 355
Dachform
Satteldach
Mehr Informationen?
Zeitlos wohnen zum Aktionspreis
Das Aktionshaus Balance überzeugt als klassisches Einfamilienhaus mit Satteldach und einem Kniestock von 140 cm. Auf rund 160 m² Wohnfläche entsteht ein harmonisches Wohnkonzept mit viel Platz für Familie, Arbeiten und Freizeit. Die ausgewogene Architektur verbindet traditionelle Elemente mit moderner Raumplanung. Helle Räume und klare Strukturen sorgen für ein angenehmes Wohngefühl. Durch den attraktiven Aktionspreis wird dieses Haus zur idealen Lösung für Bauherren, die Wert auf Raum, Qualität und Planungssicherheit legen.

