
Balance 400
Alles auf einen Blick
Architektur
2-geschossige Häuser
Baureihe
Balance — 400
Dachform
Walmdach
Mehr Informationen?
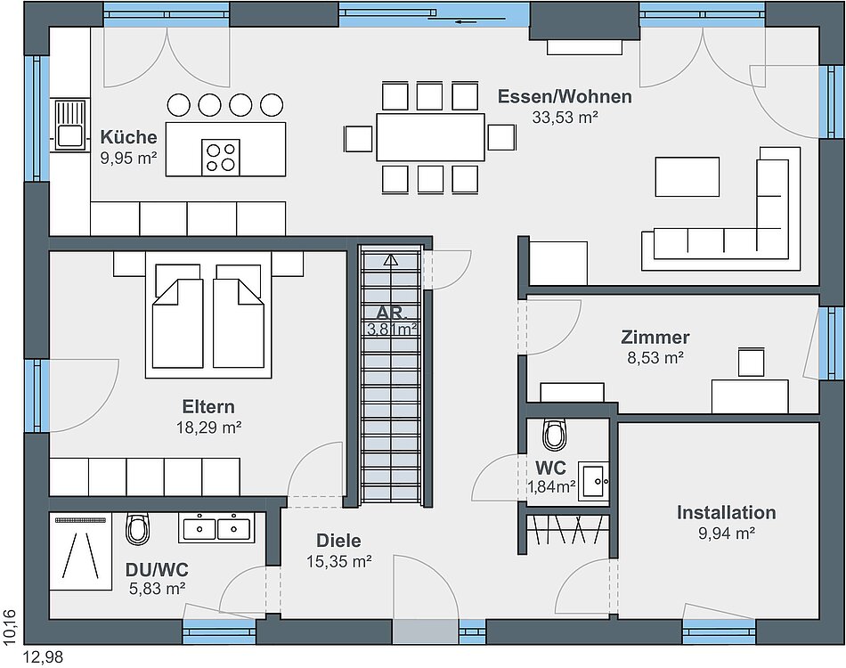
Stadtvilla für sechs
Ein gradliniger Baukörper, eine weiße Putzfassade und ein dunkel eingedecktes Walmdach – diese elegante Stadtvilla macht sowohl im gewachsenen Umfeld als auch in komplett neu erschlossenen Baugebieten eine gute Figur. Für Spannung sorgen die grau abgesetzten Bereiche am Obergeschoss, die dem Haus im Zusammenspiel mit den grauen Fensterrahmen einen ruhigen, unaufdringlichen Charakter verleihen. Harmonisch fügen sich die transparenten Überdachungen über dem Eingang und über der Terrasse in das Gesamtbild ein.

