Ein Haus für die Zukunft
Effizientes Familienhaus mit flexiblem Raumkonzept
Laut lachend rennt der kleine Leon durch den weitläufigen Wohn-, Ess- und Kochbereich und wirft sich zu seinem Bruder Jonas in den kuscheligen Hängesessel, der daraufhin in Schwingung gerät. Elvira und Timo Huber schauen fröhlich dabei zu, wie ihr jüngster Sohn den Sitz kapert und zur Affenschaukel umfunktioniert. „Der Hängesessel ist ein echtes Highlight – nicht nur für die Kinder. Jeder Besucher war mindestens einmal am Tag darin“, freut sich Elvira Huber. „Die Idee dazu haben wir schon in der Planungsphase unseres neuen Eigenheims mit WeberHaus besprochen und extra einen Querträger einziehen lassen, der die Last aufnehmen kann.“
Auf gute Partnerschaft
Auf den Hausbau hatte sich das Paar gut vorbereitet: „Wir waren in sehr vielen Musterhausparks – unter anderem auch in der World of Living von WeberHaus – und haben uns zahlreiche Häuser angeschaut, um uns inspirieren zu lassen und um ein besseres Verständnis dafür zu entwickeln, was wir wollen und was nicht“, berichtet Timo Huber. Wichtig war den jungen Eltern das Thema Zukunftsfähigkeit – und zwar in allen Bereichen, von der Raumplanung bis hin zur Haustechnik. „Nach zahlreichen Gesprächen mit anderen Anbietern, haben wir in WeberHaus einen Baupartner gefunden, der uns von Anfang an gut beraten und immer wieder neue Ideen eingebracht hat“, erinnert sich der zweifache Vater. „Ein Pluspunkt war, dass der Architekt frühzeitig einbezogen wurde und wir unser Haus gemeinsam mit ihm und dem Bauberater planen konnten.“
„Im Alter nicht eingeschränkt sein“
Eine Herausforderung für das Planungsteam war der Wunsch, auf einer Ebene zu wohnen. „Das Hauptleben soll sich wie bei einem Bungalow im Erdgeschoss abspielen, was natürlich eine gewisse Grundfläche erfordert. Gleichzeitig sollten die Gemeinschaftsräume nicht darunter leiden“, erklärt Elvira Huber. Ihr Mann Timo ergänzt: „Wir haben dann zusammen mit WeberHaus die Lösung gefunden, dass wir das Erdgeschoss mit zwei Erkern erweitern, ohne dabei das Gesamthaus unnötig zu vergrößern. Das wäre dann auch ein anderer Kostenrahmen gewesen.“
Tief durchatmen und wohlfühlen
Beide Erker hüllen sich in eine helle Holzverschalung, die nicht nur warme Akzente zur modernen Gestaltung setzt, sondern auch eine Verbindung zur regionaltypischen Architektur sowie zur Bauweise des Hauses herstellt. Denn Holz bildet die Basis für die Gebäudehülle ÖvoNatur Therm, die Standard in jedem WeberHaus ist. Dank der von Natur aus hervorragenden Wärmedämmeigenschaften werden die Wärmeverluste im Winter auf ein Minimum reduziert. Im Sommer bleibt es dagegen angenehm kühl in den Räumen. Kombiniert wird der klimaneutrale und nachwachsende Baustoff mit weiteren natürlichen Materialien. „Wir haben ein tolles Raumklima im Haus“, schwärmt Elvira Huber. „Das bestätigt auch jeder der hereinkommt.“ Das gesündere Raumklima, das in einem WeberHaus herrscht, wird durch die Zertifizierungen von drei unterschiedlichen Instituten belegt.
Mit Weitblick geplant
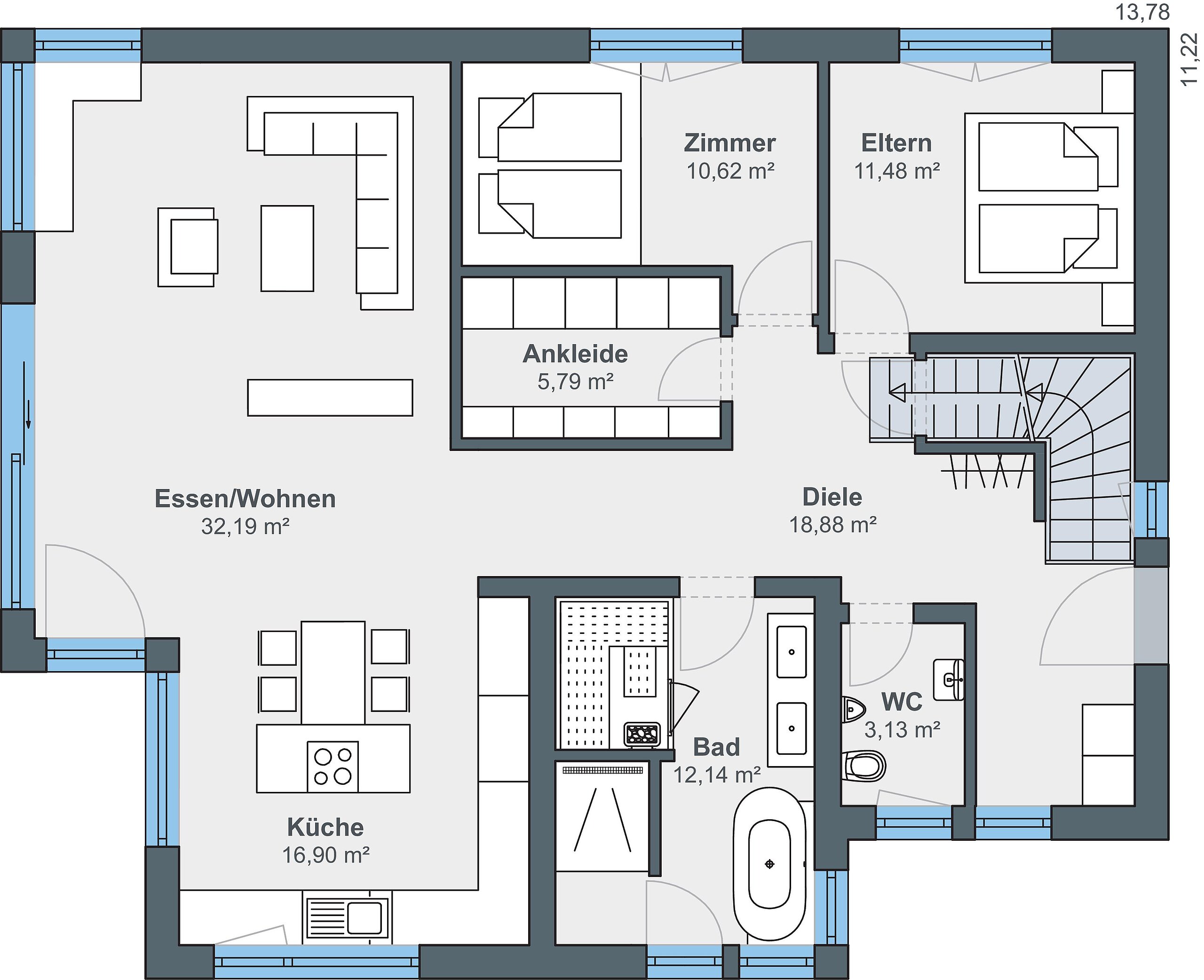
Trotz Hanggrundstück konnte ein ebenerdiger Zugang geschaffen werden, indem man das Haus sanft in den Hang hineinschob. Schon beim Betreten fällt der Blick durch die Diele und die weitläufigen Gemeinschaftsräume bis hinaus auf die Terrasse, die sich schwellenlos anfügt. Absoluter Lieblingsraum der Familie ist der Wohn-, Ess- und Kochbereich, der fast die Hälfte der Erdgeschossfläche einnimmt. „Hier findet das Leben statt, hier kommen alle zusammen“, freut sich Elvira Huber. Die restliche Fläche teilen sich ein Bad mit Sauna, ein Gäste-WC, das gemeinsame Schlafzimmer der Kinder, eine Familienankleide sowie das Schlafzimmer der Eltern. Im Elternschlafzimmer ist bereit ein Wanddurchbruch für spätere Umbaumaßnahmen vorgesehen: „Wenn die Kinder alt genug sind und ins Dachgeschoss ziehen, dann können wir die beiden Räume zusammenlegen. Der Schlafbereich der Kinder wird dann unser Ankleidebereich“, erklärt Timo Huber.
Willkommene Zuwachsreserven
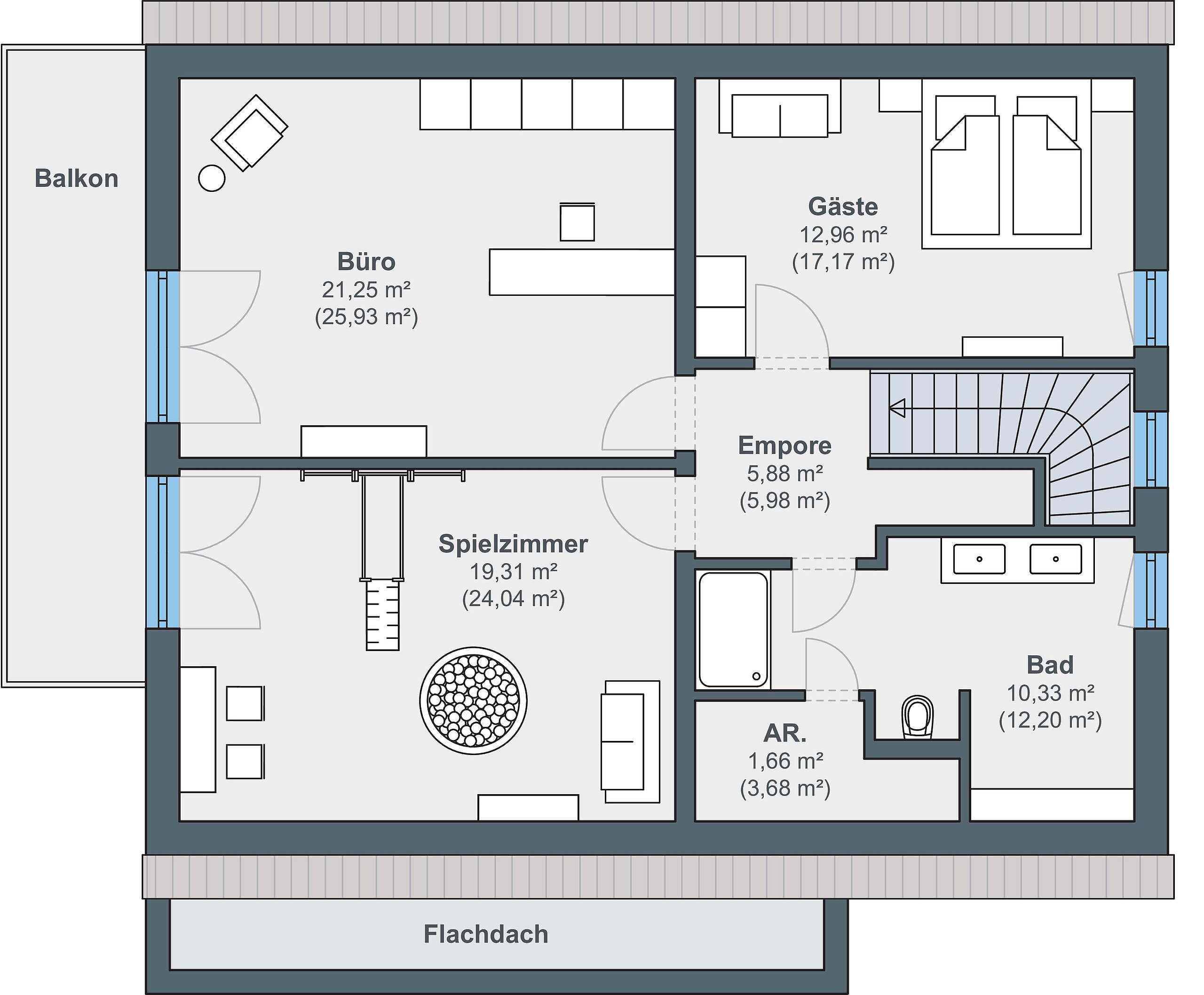
Die Treppe nach oben haben die Hubers bewusst in den vorderen Teil des Hauses direkt neben den Eingangsbereich gelegt. „So haben wir eine akustische Abgrenzung nach oben und nach unten“, sagt der zweifache Familienvater. Unter dem Dach befinden sich die beiden späteren Kinderzimmer, ein Raum für Übernachtungsgäste sowie ein Bad mit Dusche. Eines der Kinderzimmer wurde als Spielzimmer mit Klettergerüst, Schaukel und Sprossenwand gestaltet. „Wenn die Kinder nicht draußen spielen können, dann toben sie sich hier aus. Sie können klettern, spielen oder sich Höhlen bauen.“ Der zweite Raum dient aktuell als Büro, da Timo Huber viel im Homeoffice arbeitet.
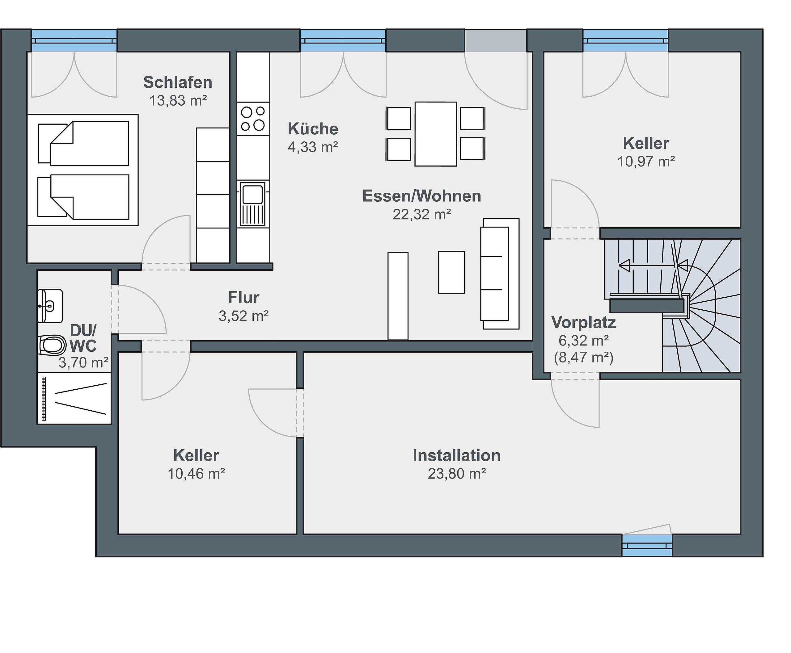
Das Untergeschoss, dass sich dank der Hanglage ebenso hell und freundlich präsentiert wie die oberen Etagen, beherbergt neben Abstell- und Technikräumen auch eine Einliegerwohnung, die derzeit aber noch nicht vermietet ist. „Auch im Kellergeschoss haben wir darauf geachtet, dass wir den vorhandenen Raum optimal nutzen können.“
Am Puls der Zeit
Sehr wichtig war den Eheleuten das Thema Energieeffizienz. Für wohlige Temperaturen sorgt eine Luft-Wasser-Wärmepumpe mit integriertem Warmwasserspeicher und integrierter Lüftungsanlage. Zum Effizienzhaus 40 Plus wird das Gebäude durch die Photovoltaikanlage auf dem Dach. Mit einer Leistung von 6 kWp liefert sie einen Großteil des im Haushalt benötigten Stroms. Überschüsse fließen in den Stromspeicher, sodass sie für einen späteren Zeitpunkt zur Verfügung stehen. „In den Sommermonaten bietet die Kombination einen hohen Grad an Autarkie“, berichtet der stolze Hausherr. „Es fühlt sich einfach gut an, wenn man seinen eigenen Strom produziert und sich keine Gedanken machen muss, ob man z.B. die Waschmaschine anmacht oder das Elektroauto lädt.“ Ergänzt wird die Haustechnik von einem Luftbefeuchter und einer Entkalkungsanlage.
Gesteuert werden viele der Hausfunktionen über das Smart-Home-System WeberLogic 2.0. Eingebunden sind unter anderem die Beleuchtung, die Beschattung, die Wetterstation, der Türöffner, die Rauchmelder und die Überwachungskameras. Der Hausherr ist begeistert von der Technik: „Das Smart Home macht alles etwas einfacher und sehr komfortabel.“
Gibt es etwas, das die Eheleute anderen Baufamilien empfehlen würden? „Angehende Häuslebauer sollten auf jeden Fall die aktuelle Wohnsituation durchgehen und sich fragen: Wie wohne ich jetzt? Wie weit möchte ich mit dem Einkauf zur Küche laufen? Dabei handelt es sich zwar um Details, aber diese werden später zum Alltag – und der Alltag entscheidet am Ende, ob man in seinem Haus happy ist.“
30. September 2025
Ein Haus für die Zukunft
Effizientes Familienhaus mit flexiblem Raumkonzept
Unser Service